






| 項 目 | MWR120UR | MWR120UR(ゴンドラ仕様) |
|---|---|---|
| 仕様 | ||
| ベース車両 | コベルコ MWR120UR | |
| 全装備重量(kg) | 16700 | |
| 履帯種類 | ゴム一体型絶縁シュー | |
| 燃料タンク(L) | 100 | |
| 寸法 | ||
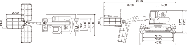
| 全長(輸送時)(mm) | 5721 | 8996 |
| 全幅(mm) | 2700 | |
| 全高(軌道上時)(mm) | 2928 | |
| 旋回半径(mm) | 1480 | |
| クローラ全長(mm) | 3670 | |
| 性能 | ||
| ブーム長さ(m) | 4.51~15.55 | |
| 最大吊荷重×作業半径(t×mm) | 4.9×2500 | |
| 最大作業半径(mm) | 14500 | 10000 |
| 最大地上揚程(mm) | 16500 | 10000 |
| 最大地下揚程(mm) | 26300 | - |
| 旋回範囲(度) | 360 | |
| 旋回速度(rpm) | 2.2 |
|
| クローラー最大速度(km/h) | 低速1.9 高速3.3 | |
| 登坂能力(度) | 35 | |
| 接地圧(kgf/cm2) | 0.58 | |
| 軌道走行性能 | ||
| 最高速度(km/h) | 16 | |
| 発進可能最大勾配 | 30/1000 | |
| カウンターバランス制動距離(m) | 晴天時 18m 雨天時 25m | |
| ブレーキ制動距離(m) | 晴天時 10m 雨天時 14m | |
| 項 目 | MWR120UR |
|---|---|
| エンジン | |
| 名称 | いすゞ A-4JB1 |
| 形式 | 4サイクル 水冷直列 直接噴射式 ターボ付 |
| 総排気量(cc) | 2771 |
| 定格出力(PS/rpm) | 41.9/2200 |
| 油圧装置 | |
| 油圧ポンプ形式・数 | 可変ピストン式・2個+ギヤー式・2個 |
| 油圧ポンプ吐出量(L/min) | 66×2+12.1+19.6 |
| 最大セット圧(kgf/cm2) | 320 |
| 操作弁形式・数 | 6+1+1連スプール式 |
| 操作方法 | 油圧アシスト |
| クローラー走行モーター | 可変ピストン式・2個 |
| クレーン装置 | |
| ブーム | 5段/4.9t |
| 定格吊荷重(t) | 4.9 |
| クレーン安全装置 | 過負荷防止装置、過巻防止装置、荷重表示装置、 高さ上限設定装置、水準器、傾斜警報装置 |
| ゴンドラ安全装置 | ゴンドラ平衡維持装置、ゴンドラ非常停止装置、ゴンドラ挟まれ防止柱 |
| 軌道走行装備 | |
| 車輪 | 径460mm 幅125mm 車輪内面距離990mm(狭軌)1360mm(標準軌) 4輪絶縁車輪 |
| 車軸 | 2軸(径100mm)各1軸通し駆動方式 車軸間3860mm |
| 動力源 | カウンターバランス弁付油圧式モーター(出力96kW トルク1530N・m) 2基 |
| 駆動 | 各軸チェイン駆動方式 |
| ブレーキ | 各軸油圧式ディスクブレーキ( 制動トルク:0.5t・m) +各軸カウンターバランス弁 駐車ブレーキ・逸走防止機構付 |
| 軌道内安全装置 | |
| 非常用エンジン | 空冷4サイクル単気筒ディーゼルエンジン( 406cc 10ps) |
| ブーム高さ制限 | ブーム上げ自動停止 |
| ブーム絶縁 | 電気用高圧プラスチックシート( 耐電圧:7000V) |
| その他安全装置 | 油圧モーター解除クラッチ、油圧モーターフリーバルブ 前照灯、後照灯、回転灯、添乗用柵、連結穴、連結棒 |