高所作業用 軌陸両用ダンプトラック
ホーム > 取り扱い商品一覧 > 高所作業用 軌陸両用ダンプトラック MD080-2AH / MD040-2AH

高所作業用 軌陸両用ダンプトラック MD080-2AH / MD040-2AH

特徴
この商品に関するお問い合わせ PDFを見る 一覧に戻る

トンネル修繕、点検用に最適な軌陸両用ダンプトラック

  • 軌陸両用ダンプトラック(8t、4t)に油圧昇降式高所作業台を装備。
  • 広い作業床を確保できトンネル修繕工事には最適。
  • 軌陸車なので移動時間も短縮。
  • 標準軌(1,435㎜)狭軌(1,067㎜)に対応。※その他軌間にも変更可能
高所作業用 軌陸両用ダンプトラック
高所作業用 軌陸両用ダンプトラック
施工例
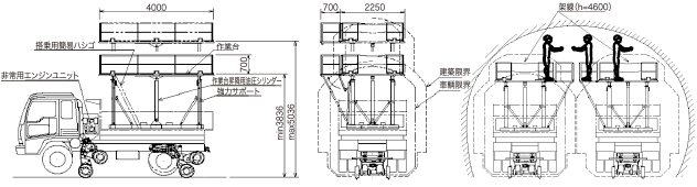
主要寸法図 MD080-2AH
主要寸法図 MD080-2AH
主要寸法図 MD040-2AH
主要寸法図 MD040-2AH
主要諸元表
項 目 MD080-2AH MD040-4AH
仕様
ベース車両 8t軌陸ダンプ 4t軌陸ダンプ
作業台最大積載量(kg) 500kg(搭乗員含む)
作業台搭乗定員(名) 5
寸法
全長(mm) 6880 5830
全幅(mm) 2485 2190
全高(通常時)(mm) 3712 2570
全高(作業台UP時)(mm) 5036 3561
全高(作業台DOWN時)(mm) 3836 2851
作業台内寸長さ(mm) 4000 3938
作業台内寸幅(mm) 2250+700 2094
荷台内寸長さ(mm) 4000 3200
荷台内寸幅(mm) 2240 2060
荷台内寸高さ(mm) 400 400
最小回転半径(mm) 6100 4700
軌道走行性能
最高速度(km/h) 1速時 15km/h  2速時 30km/h
発進可能最大勾配 40/1000
カウンターバランス制動距離(m) 晴天時 18m 雨天時 25m
ブレーキ制動距離(m) 晴天時 10m 雨天時 14m
ページのトップに戻る